Suum21 architecture 숨21건축사사무소

숨21 건축사사무소

P-building

논현동 근린생활시설

Location

Site Area

Gross Area

Program

Finish

서울특별시 강남구 논현

353.3 ㎡

984.84 ㎡

근린생활시설

고강도 박판타일

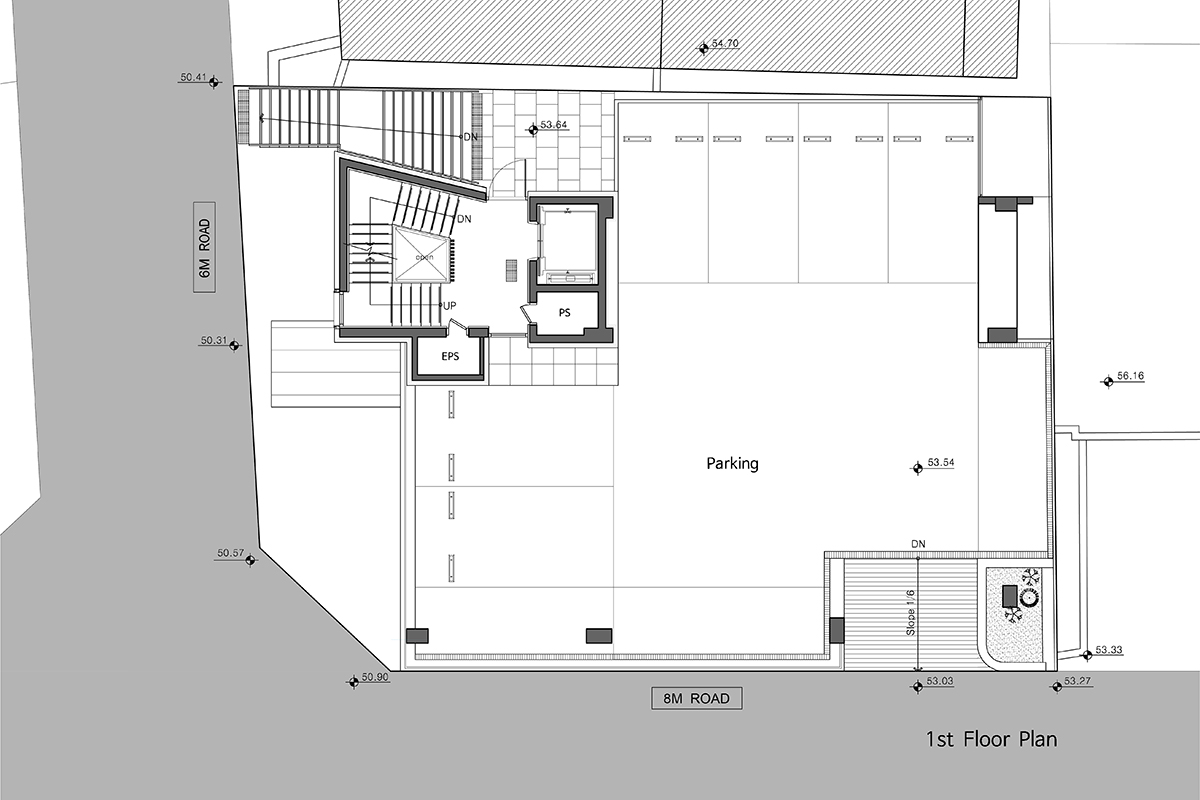
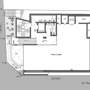
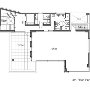
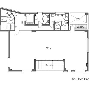
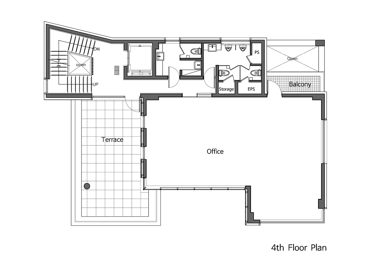
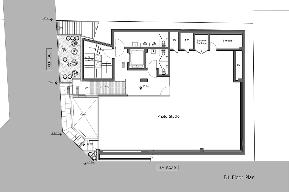
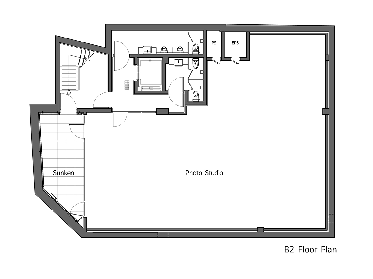
신사역 인근 경사지에 위치한 대지는 북측으로 낮아지는 2.86미터의 고저차를 가지고 있다. 따라서 이러한 지형을 활용한 동선계획과 층별이용계획이 프로젝트의 중요한 부분을 차지했다. 본 건축물은 크게 두 개의 영역으로 나누어진다. P사의 사옥으로 사용될 지상층 부분과 임대공간이 될 지하층 부분이 1층 주차장을 기준으로 수직적으로 구분된다. 임대공간의 출입은 북서측 도로에서 지하1층 홀로 연결되며, 사옥은 지상1층을 통해서 진입하도록 하여 두 영역의 동선을 분리하였으며, 유사시 원할한 피난을 위해 지상1층에서 지하1층 6m 도로로 직접 연결되는 외부계단을 계획하였다.

 

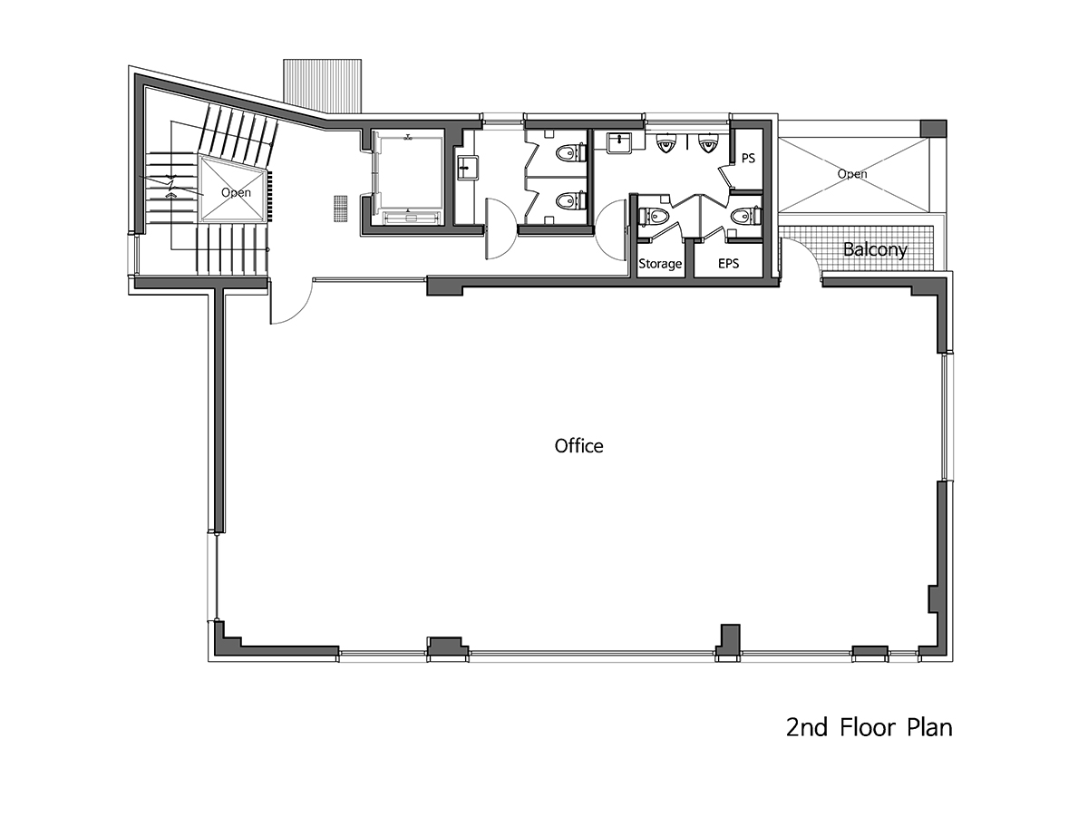
임대공간의 경쟁력을 높이기 위해 지하1층은 6m 도로에서 직접 출입이 가능하도록 하였으며, 지하2층은 선큰공간을 계획해 채광과 환기 조건을 향상시키고 층고를 4.6미터로 높여 다양한 업종이 사용할 수 있도록 하였다. 사옥부분은 당초 엔터테인먼트 그룹이 사용할 예정이었던 터라 주차 문제를 원활하게 풀어내는 것이 매우 중요했다. 제한된 면적의 경사지가 주는 어려움이 있었으나 법정주차대수를 상회하는 8대를 배치하였으며, 그 중 2대는 2.8m x 5.5m 크기로 계획하여 대형 승용차나 승합차의 주차에 어려움이 없도록 하였다. 인접대지 건축물과 가까운 북동측에는 코어 및 화장실 등의 공용공간을 배치하고, 도로로 열린 서측에 사무실을 계획하여 업무환경의 질을 높였다. 또한 각층에는 발코니, 테라스 등을 설치하여 휴식 공간으로 사용될 수 있도록 하였다. 승강기 및 계단실은 지붕까지 올려 조경공간과 함께 계획된 옥상이 휴식, 사내행사 등 다용도로 활용되도록 하였다.

 

매스디자인에서는 코아, 사옥, 임대부분으로 이루어진 공간 구성이 외부에서도 명확하게 드러나도록 하였다. 핵심 프로그램인 사옥부분이 1층 필로티 상부에 떠있는 강력한 매스로 건축물의 건체적인 이미지를 이끈다면, 임대공간의 밝은 매스가 그 하부를 받치고, 코아의 수직 매스가 그 배경 역할을 한다. 3층과 4층의 테라스는 육면체 매스의 부분을 덜어내 변화를 주며, 4층 테라스를 가로지르는 지붕과 함께 건축물에 가벼움과 경쾌함의 느낌을 주도록 하였다. 외장재로는 라이트 그레이와 블랙의 빅슬래브 타일의 대비를 통해 매스디자인의 효과를 강화하였고, 테라스 벽면에는 붉은색의 테라코타로 포인트를 주었다.

error: Content is protected !!
Scroll to Top